服务热线

400-088-5696

PRODUCT SHOW

产品展示

联系我们

  • 电话:

    0512-68139771

  • 手机:

    18962118288

  • 邮箱:

    leirvo@163.com

  • 地址:

    苏州高新区昆仑山路189号

您现在的位置:首页 > 产品展示 > XGN15-12(F)、XGN15-12(F·R)固定式户内交流

 XGN15-12(F)、XGN15-12(F·R)固定式户内交流 



            XGN15-12(F)、XGN15-12(F?R)箱式固定交流金属封闭开关设备(一下简称“开关设备”),用于额定电压12kV、额定电流630A及以下的环网供电或辐射型供电系统中,尤其适合装入预装式变电站作为电力系统的控制和保护。本产品内装绝缘外壳的FLN36-12D型六氟化硫负荷开关或FLRN36-12D型负荷开关——熔断器组合电器,具有体积小、重量轻、操作简便、操作力轻、联锁可靠、免维护等特点,是城市电网改造和建设需要的新一代高压开关设备。         
           本产品符合:GB3906《3~35kV交流金属封闭开关设备》、GB/T11022《高压开关设备和控制设备标准的共用技术要求》,IEC60298《额定电压1kV以上50kV及以下交流金属封闭开关设备和控制设备》,DL/T404《户内交流高压开关柜订货技术条件》标准。

型号及其含义


正常使用条件下
           ◎ 周围空气温度:-15℃~+40℃;
           ◎ 海拔高度:1000m及以下;
           ◎ 湿度条件:日平均值不大于95%,水蒸气压力日平均值不超2.2kPa;月平均值不大于90%,水蒸气压力月平均值不超1.8kPa。
           ◎ 地震烈度:不超过8度;
           ◎ 没有腐蚀性或可燃性气体等明显污染的场所。
注:超出上述正常使用条件时,用户可与本公司协商。

结构
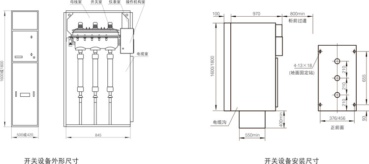
           开关设备由柜体、主开关(SF6负荷开关或组合电器)、接地开关、仪表室、母线及其它电器元器件和辅助元件组成。
           柜体由敷铝锌钢板经模数化成形组装而成。柜背后设有泄压通道,在出现内部故障时保护操作人员。
           母线室的母线覆合绝缘,直接连接在负荷开关的接线端子上。三相母线按纵向排列,使得开关设备左右可任意扩展,极易变换其布局。
           仪表室位于开关设备的上部,室内可装设电流表、电压表、指示灯以及电动操作机构等。




开关设备具备以下联锁
           ◎ 负荷开关在合闸位置时,接地开关操作被锁住;
           ◎ 接地开关在合闸位置时,负荷开关操作被锁住;
           ◎ 只有当接地开关合闸时,才允许打开环网柜前门,其它情况下前门被锁住。

操作
           对于配负荷开关的开关设备,用专用操作手柄在开关设备正面操作,操作机构的正面上、下两操作孔,上部为接地开关操作孔,下部为负荷开关操作孔。操作时,手柄向顺时针方向旋转为开关合闸方向,逆时针方向旋转为开关分闸方向。也可加装电动分、合闸装置,进行遥控操作。(注意:有时负荷开关不带接地开关,接地开关操作孔被当做柜门解锁之用)。
           对于配组合电器的开关设备,除负荷开关分闸操作用手动分闸按钮外,其它与上述操作顺序一样。组合电器柜另设的下接地开关,通过连杆与上接地开关同分同合。在合闸时释放下熔断器座上的残余小电流,以提高更换熔断器时的安全性。

外形及安装尺寸



订货须知
           ◎ 主电路方案编号、主结线系统图、排列图、平面布置图。
           ◎ 辅助回路电气原理图、端子排列图。
           ◎ 开关设备内电器元件的型号、规格、数量。
           ◎ 备品、配件的名称及数量。
           ◎ 有特殊要求请与本公司协商。